花园景观 双子座 | 90后 | 广东省-揭阳市  

意韵东方、美传千年,5个中式合院的现代演绎

01、七舍合院


© 吴清山

© 王宁


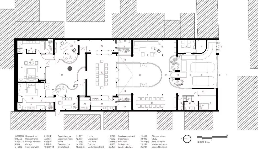
七舍合院位于北京旧城核心区内,院子占地宽约15米,长约42米,是一座小型的三进四合院。由于原建筑共包含七间坡屋顶房屋,且正好是该胡同的七号,故得名七舍。


© 王宁

© 王宁

© 王宁

原始建筑年代较为久远,除了基本上还保持的木结构梁柱和局部有民国特点的拱形门洞,其它大部分屋顶、墙面、门窗等都已经破损或消失。院内遗留了大量大杂院时期的临时建筑,遍布清空之后的建筑废料,杂草丛生、一片凋零。


原始建筑

施工过程

因此,本次改造设计一方面是修复旧的——对院落房屋进行整理,保留时间迭代的印记,修复各个建筑界面,加固建筑结构,重现传统建筑的样貌;另一方面是植入新的——新的生活功能配备(卫生间、厨房、车库等),新的基础设施(水暖电设备管线)以及新的游廊空间。新与旧相互叠合成为一个新的整体,来满足未来院子作为公共接待和居住空间的使用要求。

分析图


模型

“游廊”一直是传统建筑中的基本要素,我们引入“游廊”作为本次改造中最为可见的附加物,将原本相互分离的七间房屋连接成为一个整体,它既是路径通道,又重新划分了庭院层次,并制造出观赏与游走的乐趣。


沿胡同外立面及入口 ©吴清山外立面 ©王宁

一进院被定义为停车院,设计保留原建筑屋顶移除墙面,并平移了主入口位置,以留出尽量宽阔的停车空地。前院之中有质量历史遗存如门楼、拱门雕花、甚至一颗枯树均被修复和保留,但拆除了前后院子之间的围墙,代之以透明的游廊作为建筑新的入口。


一进院 ©吴清山一进院 ©吴清山

游廊延续了坡屋顶的曲面形态特征,并结合前后院景观与功能进行相应的变化。游廊在入口处微微上扬,结合两侧的曲线屋顶构成一个圆弧景框,将建筑、后院的大树和天空纳入风景之中。而另一侧的游廊屋顶则向下连接成为曲面墙,在停车院之内分隔出其后的卫生间、服务间、设备间等功能空间。


© 吴清山

二进院入口 ©王宁

二进院 ©王宁


二进院是公共活动院,结合原本建筑一正两厢三间房屋的格局,分别布置了客厅、茶室、餐厅、厨房等。室内外空间划分依然采用对称式布局,继承了传统院落的空间仪式性。设计消除了房屋之间的台阶,代之以缓缓的坡道连接,并结合透明的游廊共同加强内部公共空间与院落之间的连通。


二进院 ©吴清山


二进院 ©王宁二进院 ©王宁


二进院 ©吴清山


处于正房的餐厅可由新的折叠门向庭院完全开敞,保证室内活动灵活得延伸至弧形庭院之内。餐厅正中的拱门经过修复后成为进入后院的入口。


二进院餐厅 ©王宁

二进院餐厅 ©王宁二进院走廊 ©吴清山


三进院作为居住院,包括两间卧室以及茶室、书房等空间。旧建筑依然是一正两厢的格局,院内有三棵老树。


三进院茶室 ©吴清山

三进院茶室 ©吴清山

游廊平面在这里演变为连续曲线形态,一方面与庭院内的三棵树产生互动,另一方面也营造出多个小尺度的弧形休闲空间。两间卧室居于建筑最后面的房屋,室内根据屋脊呈对称式布局,两个卫生间均与小院子比邻,实现良好的采光和通风效果。


三进院茶室 ©王宁

三进院次卧室 ©吴清山

三进院次卧室 ©吴清山


设计在保持传统建筑的材料特征基础上适度添加新材料,注重保持时间迭代的印记,让新与旧产生若干微差与叠合。原始建筑结构整体保留,局部破损构件依然以松木材料替换。新的游廊、门窗、部分家具使用竹钢作为新的“木”与旧木对应。


结构修复

游廊采用框架结构支撑上设密肋梁和板,使其尽量通透轻盈融入到旧建筑环境之中。室内还结合使用功能搭配了不同旧木、原木家具,让不同色泽与质感的木相互混合。


游廊塔

传统屋顶缺少现代防水材料,保温性能也比较差,因此本次改造在保持原建筑灰瓦屋面不变的基础上,优化了屋面做法,改善其物理性能。新的游廊屋面则采用聚合物砂浆作为曲面面层材料,用平滑的灰面与肌理的瓦顶相对应。


屋顶修复

门楼修复

旧建筑墙面依然以原本院内留下的旧砖为主材进行修复,让此前大杂院拆除的建筑材料得以循环利用。室内外地面也延用了这种灰砖铺作,保持内外一体的效果。部分新墙面采用了透光的玻璃砖,但尺寸仍与旧建筑灰砖一致。


门洞和拱门修复

施工过程中意外发现的石片、瓦罐、磨盘等,完工后将其作为景观、台阶、花盆点缀于室内外;建筑修复中作废的木梁则被改造成为座椅。旧材料被赋予新的使用而不断延续下去。


旧砖的利用


旧瓦罐的利用


项目图纸

项目位置平面图

原始平面图


剖面图

剖面节点图


项目信息:

建筑师:建筑营设计工作室

建筑面积:约500㎡

项目年份:2020

主设计师:韩文强

项目设计师:王同辉

结构咨询:张勇、洪雅竹元科技

机电咨询:郑宝伟、于妍、李东杰

照明顾问:董天华

植物顾问:张晓光

图片编辑:王同辉、文琛涵

施工团队:陈卫星等、洪雅竹元科技

摄影师:王宁、吴清山

视频制作:王宁



02、叠院儿


叠院儿 “叠院儿”隐藏于北京前门附近的一片传统商业街区之中,占地面积约500平米。原建筑是一座颇具民国特征的四合院商业用房。与民宅相比,这里的房屋较为高大。南侧沿街是一排拱形的门窗,北侧的房屋则建有两层。在本次改造之前,房屋结构均被整体翻建过,院内并没有门窗和墙面,裸露着粗犷的木结构梁柱。据说这里在民国时期曾是青楼,建国后又转变为面包坊,翻建之后就空置下来。建筑未来的使用被设定为兼有公共活动与居住的混合业态空间。因此,本次改造在提升建筑质量以及基础设施的同时,重在创造基于胡同环境背景之下的特定场景体验,以吸引日益多元消费需求的城市人群。


▼外观


传统建筑的一个显著特点就是呈递进式的院落。在一座三进四合院当中,房屋的使用功能跟随每一进院而相应的产生变化,由外向内私密性逐步提高,人们由此产生 “庭院深深”的印象。设计受到传统空间中“多重叠合院落”的启发,将原本的内合院改变为“三进院”,以此适应从公共到私密逐级过渡的功能使用模式,并利用院落的逐层过渡在喧闹的胡同街区之中营造出宁静、自然的诗意场景。“叠院儿”重新梳理了新与旧、内与外、人工与自然的关系。首先局部拆除了南侧房屋屋顶,在室内空间与街道之间退让出第一层庭院,然后在南北房屋之间新加入一座坡顶建筑,并以两层平行的庭院将新与旧相互分隔。三层庭院让所有的室内空间都能有竹林与阳光相伴。空间之间彼此分离又相互透叠,带有雾化图案的玻璃墙面犹如叠嶂一般,进一步强化了半透明感的空间效果,由此实现了由外至内不同空间场景和生活情境的叠合并置。


▼院落形成




▼在南北房屋之间新加入一座坡顶建筑


房屋的使用模式跟随着三层庭院,自然产生由开放向私密的过渡关系。南房布置了接待、餐厅、酒吧、厨房、办公、库房等,是一个举办公共聚会活动的地方。原建筑木质梁柱结构被尽量保留下来,由新置入的两个木盒子服务单元来划分出不同尺度的使用空间。透过第一层庭院,原建筑拱形门窗洞和朱漆大门变成了“影壁墙”,在竹林的映衬下勾勒出真实多彩的胡同生活剪影。


▼入口接待处


▼拱形门窗洞和朱漆大门变成了餐厅“影壁墙”


中间的房屋被处理成一个弹性使用的多功能空间,既可以与前面餐厅合并共同使用,也可以独立作为展厅,或者与后面客房区合并作为休息区。这个新建的建筑体在形式上尽量考虑与两侧坡顶旧建筑在尺度、采光、距离上的协调关系。内部空间围绕一个线性的水景庭院展开,主要使用透明、半透明、反射性的材料和家具以弱化一个实体空间的物质存在感,营造有别于旧建筑的轻、透、飘的氛围,既映射又消隐于竹林庭院之中。


▼水景多功能厅


▼用透明、半透明、反射性的材料和家具以弱化一个实体空间的物质存在感


▼庭院细部


▼休息区


▼庭院


北侧房屋是最为私密的客房区域。利用原建筑结构条件,一层空间被划分为四个房间。客房休息区与卫浴区利用材料的变化彼此分开,每间客房都拥有独立的竹林庭院,内外之间相互层叠掩映。二层则分为三间大小各异的客房。透过落地玻璃幕墙,视线掠过层叠的灰瓦屋顶和绿树蓝天,正是身居此处的最佳风景。所有客房均配置了人脸识别和智能控制系统,客人可以通过线上平台完成预约并扫码入住,让居住体验变得更加轻松和便捷。


▼客房


▼落地窗引入窗外视野


▼二层客房


▼客房卫生间


▼走廊入口与客房庭院


▼楼梯间  


▼夜景


▼平面图/剖面图/细部


项目信息

项目名称:叠院儿
项目位置:前门,北京
建筑面积: 约530平米
完工日期:2018年2月
主要材料:镜面不锈钢、印刷玻璃膜、透光砖、橡木板
设计师:韩文强、黄涛/建筑营设计工作室(www.archstudio.cn)
结构顾问:张富华
水电设计:郑宝伟
灯光顾问:董天华
家具顾问:宋国超
摄影师:CreatAR Images 骆俊才/ 金伟琦



03、北京后海“嵯峨馆”


嵯峨馆,所呈现的,是建筑师捏造的幻境。我们并未脱离这座聒噪的城市,甚至没有超越这座四合院厢房的空间边界。但我们如我们的祖先一样,尝试在这方局促的空间中,寻找重新解释它的方法。

—— 神奇建筑研究室


▲邻居看到这幕场景时,也许会怀疑他过往的旧城生活经验



▲紫禁城皇帝居所养心殿复杂的室内空间,将一座620㎡工字殿的空间可能性推向极致


不得不说,北京是座建筑类型匮乏的城市,从现在的行列式住宅到被认为代表传统特色的四合院,都在用有限的建筑类型描绘庞大的城市空间。



因此,北京居民想出了许多拓展建筑空间体验的方法,比如在院子里营造庭园,在空地搭建罩棚,或用木装修细密地分隔房间。即使这些都没法实现,也要在墙上张贴表现室外场景的绘画,希冀摆脱既有环境的单调。


▲建筑原貌


在普通建筑中,虚构一个非常规场景,是北京人爱玩的空间把戏。我们的基地是一座普通四合院的西厢房,这样的建筑在北京有几万座,因为产权的关系,它被一组矮墙包围起来,成了院中之院。



▲被重构的西厢房






▲改造后的建筑剖面


面对这座格局老派的旧房,我们把旧屋空间重新界定为不同单元,针对每个单元,重构它和它的外部空间,比如将院落用建筑填实;或将户内空间退还给院落;比如将较高的空间进行竖向划分;或扭转空间与景观的对位关系。我们尝试拓展空间变化的可能性边界。


▲嵯峨馆入口


▲山石与建筑结合,改变着人们对院落物理边界的认识


▲希望有限的山石带来对更大自然物的想象


当完成逐个空间的调整后,再把它们组合,编排为新的叙事关系。新体系与原建筑的空间语言差异明显。它使进入者忘记自己处在一座昏暗厢房中,陷入一段故弄玄虚的空间冒险。


▲建筑内院


▲新的界面重新划分了旧有空间


在有限的尺度下,我们希望表现出使用空间对风景 “收集”倾向,刻意为日常场景营造非日常的画面北京。我们觉得这座建筑中,风景与空间应当是互相追逐的,你几乎躲避不开风景的尾随。



▲空间与风景的“追逐”关系


▲空间对风景的“收集”


▲被重构的室内空间


▲旧有木质屋架恰好界定出相对私密的卧房区


在重构这间厢房的过程中,我们尝试保留这座建筑演变的痕迹。从早期粗率的重建,后期随意的修补,到某次反悔的空间修改,我们以每块石头和砖的维度,保留时间在这座建筑内的轨迹。


▲不同时期建造的痕迹被“陈列”在一起


▲侵入生活场景的山石


新置入部分只留下白色背景,我们用它们标记自己对这座建筑的影响,也准备有人将这一切再次夺走。我们有意对抗室内外界线,比如用北京西郊出产的房山石,在建筑内外摆布出独立于建筑空间的山石群落,创造与自然物不期而遇的机会。


▲植入部分形成了新的室内流线和隐私梯度


▲重新组织的自然光改变了场所的属性和使用状态



那些嵌入墙体的山石,似乎暗示着这座建筑修造于一座幽静的谷底,山峦难以掩藏的局部直接探入人们的生活场景。



虽然掌握一些看似有力的技术,但当我们尝试把一块3吨重的山石运进四合院时,我们能想到的办法,并不比18世纪的建筑师高明多少。


▲首层平面图


▲二层平面图



项目信息

项目名称:嵯峨馆

设计公司:神奇建筑研究室

项目地点:北京

竣工时间:2017

建筑面积:100㎡

业主:叶先锋

建筑设计:朱起鹏、刘雁鹏、袁樱子

庭院景观设计:丁莉

照明设计:丁志强

摄影:孙海霆等



04、北京滋生小院


叠浪之下的庭院空间 ©邱日培

由东向西看屋顶曲线 ©邱日培

引子

由场地引出的画面联想2018年春,我们遇见了这处被大棚盖住的“院落”,占地约200平米左右。场地所在的院落,需穿过一条杂乱的胡同,由北向的院门进入。其西,东,南三面均为楼房。整个场地宛若处于一处峡凹,只有北边的空间视线较为开阔。我试图从这里去寻找和周边老城区的关系。


场地周边情况

我爬上南面的小白楼,站在8米高的房屋楼顶,看着北面或有序或杂乱的北京传统四合院屋顶连续延绵至德胜门,如水浪滔滔北去,奔腾不息。屋顶之上因近些年的占地加建,生长着无数形态各异的附属建筑,姿态极其丰富。他们和屋顶,庭院发生着各种各样的关系,或嵌入,或悬挂,或倚靠,或缠绕。形成了特有的北京大杂院的组织乱象,这也是大多数北京四合院的现状。这些周边有趣的关系是我思考设计的开始:以屋顶拟浪,建一组长在浪上的房子······


屋顶浪上的长亭 ©邱日培

描述一个画面

  “一片澎湃而层叠无尽的水浪中,水何澹澹,洪波涌起。浪里密林丛生,松石蜿蜒。浪上长亭入,浮阁卧,游舟画舫遍布。在这浪里摘窗品茶,听浪声抚琴,乘虚舟垂钓。是夜,林间浪里,明灯升起,融入无边墨色里,浪无穷尽。”这便是我所想的那一幅《层林叠浪,长亭卧波》,也是我想要建造的画面。


林叠浪,长亭卧波-概念水彩画-明冠宇

建造一个画面从画面出发,我将整个建筑的转化过程分成“五个进驻”。最开始的两层“进驻”:如绘画,构图的开始是建构大形 — “浪”的呈现。第一层“进驻”是屋浪,层层叠叠,从形态上形成了浪的大姿态。第二层“进驻”是地浪,再次强化了浪的概念,也形成了建筑的台地基础。


大轴测图屋顶石瓦铺设细节 ©邱日培东园庭院 ©邱日培

接下来的两层“进驻”是长亭,它形成了画面的大调子。长亭便是房子本身。长亭第一次进驻是位于曲面波浪之下的长在 “浪”里主体建筑,这是建筑墙化的过程。第二次是漂浮在“浪”上的平屋顶亭子,这类房子有个归类的名称“浮阁”。各个长亭之间的空间组合关系形成了建筑的主要布局也构成了画面的大框架。


水廊看屉厅盒子抽出 ©邱日培

屉厅盒子抽出内景 ©邱日培

最后是“层林”的进驻,是画面刻画,完善的过程。主要由门扇和植物构成。门扇拟林,植物为林。竖向的门扇或实或需,格栅密布,与鲜活的松竹交相错落,构成浪里的层林。


地形浪上的长亭 ©邱日培

地形的“浪”的肌理与“层林”的松林 ©邱日培

几次“进驻”的过程完成了画面到建造的转化。最终再通过功能的梳理,形成了公共和私密的两个区域:公共区域为提供给茶客品茗的东园,私密区为提供给住宿茶客和主人使用的西园。


西边为屉厅,东边为水廊,由入口廊桥连接 ©邱日培入口廊桥 ©邱日培

东西园之间通过门扇的开合变化,宜静宜动,于方寸之地构成丰富的庭院空间。入口廊桥的门扇,打开后形成框景,将水池南边的松石景观引入画框。庭院地形浪上的山石,比拟了水落石出的画面意境,形成叠石景观。西园和东园之间的实板门扇打开,东西园连成一体,层层嵌套,获得庭院空间的最大化。


水廊支摘窗 ©邱日培

“层林”里的门扇 ©邱日培

画意到空间
绘画是一种最直接的形式,赋予功能,由物及物的表达完成了基本的建造。而画面里,拟形词汇“浪”和“亭”是气韵生动的核心所在。建筑是一种物质空间实现的行为,意向,结构,材料,节点环环相扣。从画面到建筑,即是从物象到物质的转化过程。


叠浪

浪,曲面弧线,层叠起伏,势状绵延。形态上浪有浪尖和浪尾,浪尖高点,浪尾低点。


剖透视

建一个“浪”的屋顶
屋顶拟浪,从形态和瓦片做法上去模拟。在设计里,用曲线屋顶比拟出“浪”的姿态。屋顶的曲线控制来自于北京四合院屋架举折形成的弧形曲线。再赋以其“叠”的动作,造出屋顶叠浪的气势与情绪,从而形成高低绵延的屋顶形式。屋顶材料以石板为瓦,互相叠压铺设,形成线条肌理,从材料做法上也尽可能的去拟浪的形态。


屋顶形态的叠浪 ©邱日培

卷一个“浪”的地形
地形的浪,平地而起,浪卷残云。形态上,从东向西,起于东边的水池,最后结束在西边院墙之下。起点的水池,是有真正水浪的地方,凹型的弧面,在水池边缘形成浪尖,自然的转向了东边庭院。这个浪尖在形态上也很好的形成了水池和东边庭院的边界。这是转换最微妙的地方。


水池剖面图水池 ©邱日培水廊与水池 ©邱日培

长亭
亭,在滋生是两种建筑类型的概称。一为长在“浪”里的曲面屋顶的主体建筑:水廊,屉厅,松院,水院,沄室等。二为漂浮在“浪”上的平屋顶亭子:拾松坞,小活泼地,撷椿舫,梯云舫,海棠涧等。


入口廊桥看小活泼地 ©邱日培

长在“浪”里的厅室
其一:水廊
水廊位于院子最东边,是一处架空在水池之上的建筑。水廊的西立面设支摘窗。支摘窗使空间获得灵活,摘下形成通透的亭廊空间,坐浪观浪,晚风习习。


水廊

水廊的南,北,西三个立面均为玻璃维护,玻璃墙与院墙之间均留有空地,种竹环绕,使整个廊子三面都包裹在竹荫之中,一年四季,翠色环绕。


水廊支摘窗 ©邱日培

水廊地面采用透明玻璃铺设,所有水浪的质感都真实存在玻璃之下,恍若行于水面之上。坐于此处,红鱼脚下悠游,鸳飞鱼跃的想象变成现实。


水廊往北看,北侧和东侧,南侧为竹林 ©邱日培

其二:屉厅
屉厅是东园最核心的主体建筑,因其内部设有一个可抽出的盒子至庭院里,故名屉厅。当盒子抽出去时与大厅空间连为一体,形成一个大的活动空间。这也是我在建筑实践里对建筑灵活性的探讨。


屉厅 ©邱日培屉厅往南看小活泼地和拾松坞 ©小祺

其三:沄室
沄室是西园一处在二层的茶室,为主人平时私人所用。需踏着山石,沿南边墙梯拾阶而上,入内开窗便是扑面而来的松林绿枝和波浪沄沄。


沄室窗外景观 ©邱日培

其四:松院
松院客房是西园的主体建筑之一,因其私有的庭院海棠窗内种了棵歪脖的松树,故名松院。其西北角的独立庭院铺地延续了“拟浪”铺地的做法,是浪的延续。


松院客房

西园庭院看松院客房 ©邱日培

松院客房内景 ©邱日培

其五:水院 
水院客房位于松院客房的西边。其南边为一处浅水池庭院。庭院西墙悬挂楼梯,通向客房的二楼茶室梯云舫。客房南面采用透光的三组格栅门扇围合,和西园庭院相交的东边界面则采用三组实木板门扇,虚实相映。当东墙门扇打开时,视线可透过西园穿透至到水廊处。


水院客房

水院客房庭院 ©邱日培

水院客房看客房庭院  ©小祺

浮在“浪”上的亭阁
其一:小活泼地
取自诗歌“窗外鸢鱼活泼,床头经典交加”。小活泼地是一处两层的亭子,一层为卫生间,二层为观景台。悬于南墙之畔,跨墙而建,一半在浮于水面之上,一半跨于院墙外侧,为东边最高的建筑。置于其内,可观松石在畔,泉水激石。


小活泼地东园庭院内看小活泼地和拾松坞 ©邱日培

其二:拾松坞
拾松坞为水浪之上停船之地。也从南墙之畔悬挂出来,一弯半人高的松树长于此坞之下。于松树之上拾阶而上,踏松弯腰入坞,透过亭子的玻璃地面,遍观亭下水浪落下之后的礁石和绿松。


拾松坞雨后的拾松坞,礁石浮出,松枝繁翠 ©邱日培

其三:海棠涧
海棠涧位于西北角的庭院之上,是松院客房的茶室。茶室悬于庭院一隅,如驾于山涧之上。其正对东墙上,开一海棠窗洞,一脉松枝从洞中探出,是为海棠涧。


海棠涧

松院庭院西看海棠涧 ©邱日培

其四:撷椿舫
撷椿舫位于屉厅屋顶水浪之上,因院外东南角有棵香椿,便以此对景,旋转了45度。在巨浪中,撷椿于室。


撷椿舫

撷椿舫局部 ©邱日培

撷椿舫看向窗外框景 ©邱日培

其五:梯云舫
梯云舫位于最西边的屋顶之上,是水院客房的茶室。也是浪群里最高的建筑所在,坐于此舫,以绳为梯,云中取月,观浪卷浪舒。

结语空间抽象一直是建筑设计的永恒命题。我在大量尝试通过抽象去寻找空间意向的过程中,结合对绘画空间的理解,发现其实对于设计而言:无论是抽象还是具象,它们不过是寻找具有某种氛围空间属性的方法而已,而设计本身则需通过对场地的基本判断,得出其空间特有的氛围属性。


梯云舫东侧场景 ©邱日培

滋生小院从《层林叠浪,长亭卧波》的画面概念到落地的实践,在这个过程中,画面反复的在指导着建筑的落地,从形式到材料到做法。建造本身也在尽可能的去还原画面本身所描述的场景氛围,使其变成画面现实。


水院客房由西往东看场景 ©邱日培

这个从画面到建筑的实践,是一次基于拟物的画意空间营建,亦是对如何构建如画空间的一次新尝试。


小院主入口与胡同关系 ©邱日培


项目图纸


总平面图

一层平面图一层平面盒子抽出

二层平面图


剖透视图



东西园庭院及视线关系分析图


屉厅抽出平面对比图


平面视觉设计


项目信息

建筑师:介介工作室

地址:德胜门内大街61号,西城区,北京市,中国

建筑设计:明冠宇

建筑面积:140.0 平方米

项目年份:2018

摄影师:邱日培

室内设计:明冠宇,亓明

方案讨论:万露,王磊

平面视觉设计:明冠宇,石韦

施工方:陈峰利团队

业主:北京滋生文化有限公司



05、安之若宿·山


© 金伟琦

「安之若宿·山」是一家新锐精品民宿,位于腾冲和顺古镇,坐落在一条由古镇延展出来的繁杂老街上。基地是一纵狭窄而又曲折的山坡及一片山顶上的地块,平面合在一起构成一个倒「L」形。地块两端属性截然相反,一端处于闹市,一端隐于云天,中间仅由不足几方的细窄坡道维系。方向的转折和高差的跳跃,使场地区域间关联性变得十分薄弱,给建筑带来了极大的挑战。


远眺古镇,呈现市井古镇与山林结合的三维立面 ©金伟琦

面对沿街立面的分毫必争,我们选择一种与世无争的姿态,以退为进地去寻找建筑的空间和尺度。入口被隐藏,立面被消解,屋顶的“存在”也被重新定义。建筑沿着山坡顺势爬升,屋顶覆盖在山坡上,沿着视觉动线折层而上。原本隐于房屋聚落背后的山林被打开,和近处的建筑形成一个全新的三维立面。这是中国宋代山水画中的正观立面,犹如范宽在《溪山行旅图》中虚构的层次叠加的山水世界。


飞檐走壁,恣意江湖 ©STUDIO QI

卧倒的立面成为了一个人们可以停留、谈论或者摄影的街边合院,而不再是一家民宿的简单界墙。逼仄的小街动线瞬间被打开,社会性的主题被引入其中,重新唤醒了古镇邻里街巷的脉络。


建筑与山林结合的三维立面 ©金伟琦

屋檐与地面之间微启的入口 ©金伟琦

「安之若宿·山」屋檐与地面之间微启的入口,将旅人引入室内的一个「另世界」。在这里,屋顶、墙体、立面和地面的界线被模糊,空间是一个“场域”而非被传统梁柱切割的“房间”(Architectural Field vs. Architectural Room)。


立面图 ©STUDIO QI进入餐厅后的第一个转折点,“场域”的概念 ©金伟琦

公共区域依附着山体生长,上下相连,阡陌交通 ©金伟琦

公共区域顺地势而上,依次排开 ©金伟琦

 ©金伟琦

 ©金伟琦

空间是一个“场域”而非被传统梁柱切割的“房间隔间“ ©金伟琦

建筑内部的功能和动线逐一应对山的走势,餐厅、酒吧、表演、茶台、阅读、文创,顺地势依次排开,上下相连。时间被纳入场域之中,活动的场景在不断的发生、互动。


平面图 ©STUDIO QI

活动的场景在不断的发生、互动 ©金伟琦

透过不同高度的窗捕捉到不同角度的林间景致 ©金伟琦

公区延伸至最顶端的茶室,整个和顺古镇展现在眼前 ©金伟琦

位于公区最顶端的茶亭 ©金伟琦

我们置入了一把“天梯”去应对场地自身20米的巨大高差,从市井街巷直通云霄,总共133阶,让整个上山过程充满了“问道”的仪式感,也让上山过程变的清晰。更重要的是,天梯也成为了串联横竖两幅场地的核心线索,增强了场地的关联性和整体性。


“天梯”一路向上,总共133阶 ©金伟琦

连接天梯的顶端是另一条穿梭于山林间的“飞廊”,把回房的动线架空于山中,光影的交错好比山间的一涧溪水,呈现出山林应有的姿态。


飞廊的11种图解,之其五 ©STUDIO QI

一条穿梭于山林间的“飞廊” ©金伟琦

“飞廊”把回房的动线架空于山中 ©金伟琦

 ©金伟琦

飞廊远景 ©金伟琦

「安之若宿·山」的十五间客房运用2.5维建筑手法去应对复杂的场景关系,寻找最佳视觉景观面。进入客房,墙体多维度延展的几何趋势,和低浮在地面上的家具物件,把视野和焦点推向窗外的四时风景。墙、床和浴缸的角度位置互相交错,引导身体的挪移和视线的转换,捕捉多维度的景致和记忆。


客房,视觉和功能关系示意图 ©STUDIO QI

客房一 ©金伟琦

客房二 ©金伟琦

客房三 ©金伟琦

在这里,建筑墙体和空间界线的微妙关系被探讨和试验。我们希望强调的是,墙并非牢不可破,有时是一面脆弱的屏障,在瞬间可以被柔软的光影打散或消失。每间客房都运用了2.5维“微墙体”空间手法(类似于浮雕和强透视相结合的方式),使主要侧墙微微凹折,发展出另一个不经意的空间,随着昼夜光线的变化交替,时间被引入,空间开始错位,变得不可丈量。人的方位和视觉成为两组不同的线索,光影、记忆和故事在这里发生。


客房,2.5维空间策略示意图 ©STUDIO QI

© 金伟琦

© 金伟琦

© 金伟琦

从进入「安之若宿·山」开始,时间不再是线性发生的,空间也不再是规矩方正的。2.5维,不是被动套用经验,而是用微弱的界线,构建新的视觉记忆,提倡关于体验和感知的可能性。


这就是我们想定义的「大美不言,安之若宿」。


© 金伟琦

© 金伟琦

© 金伟琦


项目图纸

剖面图

餐厅区域,空间与时间关系示意图

公共区域,动线关系示意图


项目信息

建筑事务所: STUDIO QI

地址:腾冲市和顺古镇,云南省,中国

建筑面积:1800 平方米

项目年份:2019

主创建筑师: 戚山山

设计团队: 赵雨婷、杨萍、刘念非、季冠洲(实习)

摄影:金伟琦



本文由景观邦编辑整理自 gooood谷德设计网、建日筑闻等网络,仅供交流学习,


返回
0.0566s